c

Universitetsgata 2

  • Universitetsgata 2
  • Universitetsgata 2
  • Universitetsgata 2

Skanska Norge AS gjennomførte optimaliseringsfasen for rehabiliteringen av Universitetsgata 2 (U2). Denne fasen innebar bl.a. forprosjekt med detaljering av underlag og kalkyle. Intensjonen var at Skanska AS skulle utføre arbeidene i totalentreprise (8407) etter endt optimaliseringsfase. 

Samspillsfase: 24.10.18 - 03.07.19. Gjennomføringsfase: 01.08.19 - 01.06.21.

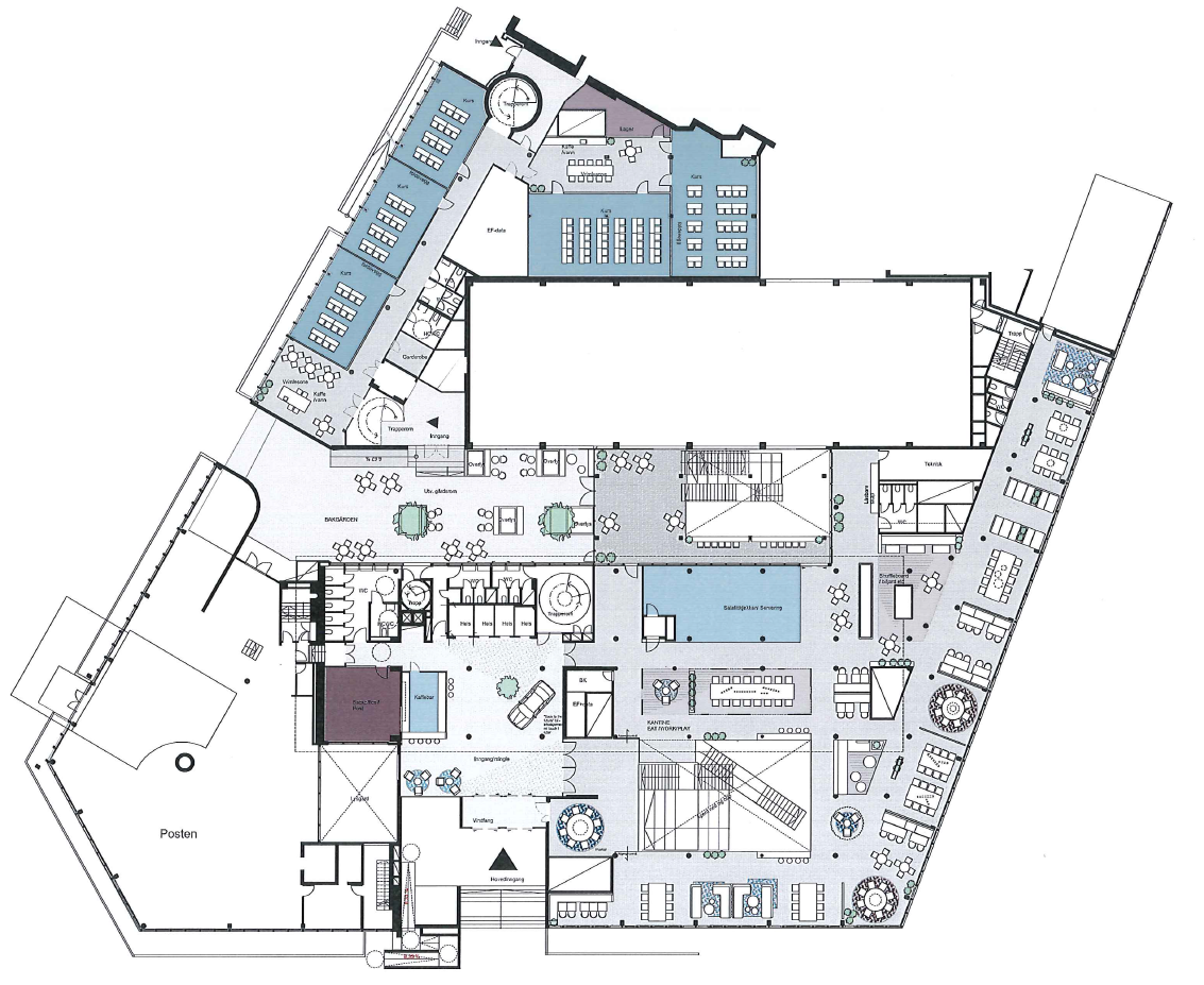
U2 er et landemerke i Oslo, og er sentralt plassert i forhold til kommunens utviklingsplaner for indre by. Visjonen var at Universitetsgata 2 skulle fremstå med moderne og gode arbeidsplasser og et aktivt bygulv, samtidig som en tar vare på bygningens unike karakter.

Prosjektet omfattet rehabilitering av ca. 25 000 m2 fordelt på en base (U3-3. etg) og en høyblokk (4-17. etg). Det var operative leieforhold og operative tekniske installasjoner i bygget under rive- og byggeperioden. Dette var Café Fuglen, Posten og Telenor tekniske installasjoner. Bæresystem og fasader ble holdt intakte, men innvendig ble det meste revet og rehabilitert. Det var også noen konstruktive endringer innvendig. Rivearbeidene ble kontrahert av Entra, og ble ferdige før gjennomføringskontrakten ble påbegynt, med unntak av konstruktiv riving som ble utført som en del av Skanskas kontrakt.

Prosjektet blir gjjennomført med VDC som arbeidsmetodikk i prosjektering og produksjon, med Lean/Last Planner, ICE-møter i BIG-room og tverrfaglig bruk av åpen BIM; til kollisjonskontroller, visualisering, mengdeuttak, framdriftsplanlegging, beslutningsunderlag til BH og brukere, KS i prosjektering og produksjon. Solibri ble brukt som samhandlingsverktøy og BIM 360 Field som KS-system.

Arkitekt: MAD Arkitekter AS

Søk etter et prosjekt

Antall prosjekter

loading